площадью 99,90 м2, по цене 25724250 по адресу Одинцово г - Одинцово, Сколковская улица,9Б

Цена 25 724 250 р.
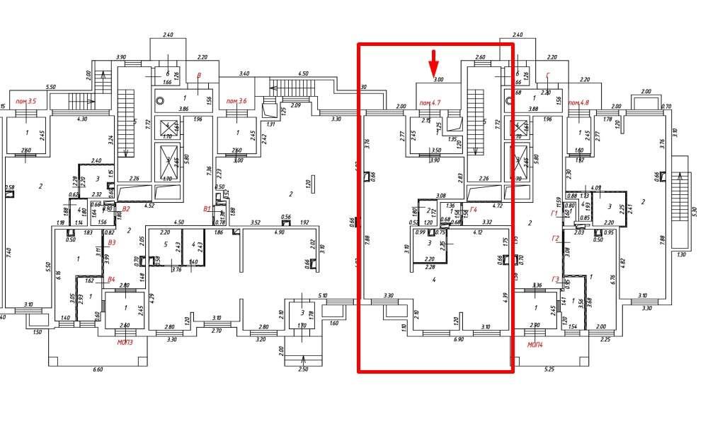
Адрес Одинцово г, Одинцово, Сколковская улица,9Б
Площадь помещения 99,9 м2
Помещение под МЕДЦЕНТР от ЗАСТРОЙЩИКА! Продается помещение от Застройщика в густонаселенном UP - квартале "Сколковский". Помещение имеет 1 отдельный вход с улицы Сколковская. Помещение расположено на входе/въезде в ЖК со стороны МКАД и трассы М-1. В 100 м от автобусной остановки, напротив перекрестка по ул. Чистяковой в сторону трассы М-1 и МКАД. Высокий пешеходный и автомобильный трафик. Напротив помещения есть 2 гостевых парковки. Высота потолков 3,2 м, выделенная мощность - 0,2кВт/ м2, состояние помещения - shell&core. заведены точки подключения к системам вентиляции, гвс/хвс, канализации. В помещении 4 больших витринных окон, предназначено под организацию поликлиники/мед. кабинета, под помещением - тех. этаж+кладовые. ЖК сдан, 100% заселен. ЖК «Сколковский» расположен в 20 минутах ходьбы от станции МЦД D1 «Сколково», в 6 км от МКАД по Можайскому шоссе. Общее количеством квартир 7 500 шт. и населением более 10 000 человек. Целевая продажа - под мед. услуги. Доступна беспроцентная рассрочка на 2 года, все подробности по телефону!
Объявление № 23381261
Дата подачи:
15 октября 2025 г. 3:21
Дата обновления:
14 октября 2025 г. 4:00
Просмотров 7 Хотите продать быстрее?

Продавец
Отдел продаж
Показать номер телефона
Пожаловаться
Комментарии:
Добавить